Heritage gardens

A thoughtfully planned garden will complement and enhance your house, maintain its original character and style, and add value to the property. Successful garden design respects the traditional garden elements for the style of house and its site.

We've produced these design guidelines to provide general guidance for restoring or developing gardens in heritage and character precincts.

Find out more about typical heritage house styles in the Toowoomba Region. For books and reference guides to help with planning a garden sympathetic to your house's character, visit the Toowoomba Region Libraries.

Design guidelines

Whether you're redesigning the garden on its own or as part of a house extension or renovation, there are a few things to consider before you start.

  • Before clearing the rear yard or old garden, record the location of built elements and paths, their condition and potential for retention and adaptation. Consider these in the design of the house extension and garden planning.
  • Consider the design and placement of any built structures, paving or pathways within the garden.
  • Include fences in your garden design, as these are an important design element. Find out more about heritage fences.

Front garden

Traditionally, the aim of the front garden was to beautify the home and make visitors welcome. A thoughtfully restored or planned front garden, including the front fence, gates, driveway and carport, will visually complement the house's presentation and attractiveness. Images 1a, 1b and 1c show three different types of heritage front garden.

gardens small cottages 

The gardens of cottages and gabled houses didn't change substantially through the late 19th and first half of the 20th centuries, even though house styles did. Some of the materials, decorative elements, feature beds and plants changed over that time, but the basic layout and style remained similar.

When restoring or adapting a garden, incorporate these traditional structures and elements:

  • Garden beds along the base of the house or front verandah. These hide the under-house battens and visually integrate the house into the garden.
  • Lawn in the centre of the front garden and along much of the house frontage. For larger gardens, this serves as a way to walk into the garden space and presents the garden beds to the viewer.
  • Features located in the lawn, such as decorative garden beds or elements like a fountain or statue, often as a central feature.

Front fences and planting

Fences are key features of the garden, so it's important to choose an appropriate style, height and materials for a new or altered fence. Learn more about heritage fences.

The front fence design should be relatively low and in the correct proportion to the house verandah and window height (Image 2). The height and materials will influence the selection of front garden plants. For some privacy, shrubs can be allowed to grow well above the fenceline.

gardens a red concrete path 

A modest chain mesh fence is a good option for historical cottages. The front garden's small shrubs and low feature plants can be seen through a mesh fence and the shrubs growing through visually soften the mesh.

Ideally, side frontage fences should be kept to the height of the front fence. This allows views over the fences to the adjacent owners' plants, thus visually enlarging the garden. It also contributes to the streetscape in allowing angled views on approach to the house.

Trees and palms

Small trees are common features of historical house front gardens. Benefits include shade, framing the house presentation and softening the view of the roof with a flowering canopy. For many historical houses in urban areas, the front garden is too small for most trees unless the tree is grown to one side and allowed to overhang the house, the neighbour's garden or the footpath.

In large houses with spacious front gardens, a pair of palms either side of the entry path is traditional. These make a strong visual statement.

Overhead wires limit the location of trees. However, there are many large shrubs of traditional character you could use instead to provide shade and privacy.

Entry path

Ideally, retain the original paths where possible. Many early cottages still have the original entry path even if the garden has lost most of its original planting.

You can retain the old concrete path as long as it's not too uneven and has no major cracks. The weathering or faded colour is the patina of age and appropriate for your renovated garden. If you need to replace it, record the location, width and edging so you can carefully reconstruct it.

Concrete or brick paved paths have often replaced original gravel paths. A 1930s or 1950s front fence, younger in style than the house period, can indicate a past garden change. In this case, you can retain the front path, as restoring it to a gravel path may not suit your needs. Gravel paths are higher maintenance and gravel tracked inside can cause wear and tear to exposed timber floors.

Avoid merging the entry path and driveway, causing the driveway to become the front door path.

Inappropriate path materials

The path style and materials should relate to the house style and be selected from materials used in the region's surviving historical gardens. Inappropriate materials for paths include:

  • stamped or patterned concrete finishes
  • concrete unit pavers, particularly interlocking pavers
  • bitumen
  • noticeably modern brick or clay pavers. 
Appropriate path materials

Appropriate path materials include:

  • compacted, fine granite gravel or local gravels
  • plain or coloured concrete – traditionally red or green
  • bluestone or sandstone – either random flagstones or rectangular stones.

Bluestone was generally used for garden and path edging. It wasn't often used for entry paths as it's a very hard material and difficult to form an even surface.

Narrow garden beds edging the front path often display annuals, perennials or roses, highlighting the importance of the entry path and the owner's pride in the house presentation.

Driveway

A driveway of compacted earth, gravel, or concrete tracks running through grass has historical authenticity (Images 3a and 3b). This sort of driveway has a low-key appearance most suited to the soft timber textures and garden settings of the region's historical houses.

gardens driveways 

For a contemporary, water saving adaptation, you can change the driveway lawn to hardy, massed low plants.

Side garden

Urban gardens usually have narrow spaces between the house and the side boundaries. These may also contain the driveway. Gardens in these spaces are often limited due to the need for house maintenance access.

Even so, respect the house's heritage in the way you design these narrow side gardens and select appropriate plants (Image 4). These areas are often shaded for much of the day and grass may not thrive. You can restore or add these garden components:

  • A garden or gravel extending out from the house battens, or from the concrete path along the house. This helps to alleviate mossy ground.
  • A concrete path. However, try to keep a garden as well, at least along the base of the fence. Traditional gardens did not have extensive pavement areas.
  • Vine-covered arbours between the fence and house. These are usually located at a side gate or the start of a side path.
  • Vines trained up the fence and possibly over a top rail or trellis along the top.
  • A freestanding timber screen for privacy to side windows.

gardens gravel path 

Choose low-maintenance plants for these narrow spaces. If there is no path, plant low vegetation at the base of the house to maintain access and for house cleaning.

Traditional plants include:

  • Aspidistra elatior (aspidistra)
  • Nephrolepsis spp. (sword fern)
  • Nandina domestica (sacred bamboo)
  • Zepheranthes spp.
  • Adiantum spp. (maiden hair ferns)
  • Dracaena trifasciata (snake plant or mother-in-law's tongue).

Other plants you could use include:

  • Liriope muscari (liriope)
  • Dietes grandiflora (day iris)
  • Dianella (flax lily) varieties.

Rear garden

The rear garden is likely to be substantially larger than the front garden and may need to accommodate several different elements. When you design a rear garden, consider how the old and the new will fit together.

Retain original or old elements

Original or old built elements on your property may include:

  • paths
  • stone walls
  • edged garden beds
  • old shade houses
  • clotheslines
  • tank stands.

Before clearing the rear yard or old garden, record:

  • the locations of built elements and paths
  • their condition
  • their potential for retention and adaptation.

Consider these in the design of any house extensions and in garden planning. You may be able to restore or adapt them for renewed use, even if only partially. These provide authenticity, links to the past and an interesting, close relationship between the house and garden.

Integrating new additions

Even if your historical house has had no modern extensions or renovations and few are planned, you'll probably still want to change the old garden layout. Rear yards today have different uses compared to when they were established decades ago. For example, you may need to remove lawns, gardens or trees to accommodate a new garage, water tank, covered outdoor living area or swimming pool. It's best to keep the design around these modern additions contemporary but simple.

Your new garden design will appear most in accord with the house if you keep much of the overall structure, simplicity and plant character of traditional gardens from the house period. Consider the form, scale, proportions and character of the house and its relationship to the rear garden. For example, Italianate rendered walls, decorative metal pool fences, high Victorian or Asian-inspired reproduction gazebos and ornate fountains will not integrate happily with a timber-and-corrugated-iron 19th or 20th century cottage.

Carports and garages

Carports or garages can be a major intrusion in an old garden. For information about placement and design of these structures in an older home, read our guidelines on heritage carports and garages.

Value the existing mature trees and garden plants

When you plan your garden, first conduct a detailed review of the existing trees, shrubs and small plants. There are often potential garden treasures to be revealed. Trees can be carefully pruned and canopies thinned to uplift them and allow more light, or to form a shaded space beneath for paving and a seat. If you can't fully restore an overgrown, leggy shrub (Image 5), you may be able to turn it into a sculptured small tree or accent in the garden. Camellias, hibiscus, cotoneasters and crepe myrtles are some of the plants you can retain in this way. 

gardens long unpruned 

If your boundary hedges are overgrown and sparse near the ground you can prune them to grow bushy again, or you can refresh the soil and under-plant. Transplant shrubs, ferns, lilies, bulbs, succulents and roses from places needed for building extensions. Save good garden soil.

These measures can help you keep the traditional structure and plant character that suits the house style. They'll also help you retain a garden that appears appropriately established and is full of character and history.

Small garden structures

A fernery or bush house in the rear garden was fairly common throughout the early 20th century. In the Toowoomba Region, larger gardens often had small conservatories or aviaries. You can includes these structures in your renovated garden to reflect its traditional character.

If you want to include a small garden retreat, garden storage with work table, or children's cubbyhouse, you can design them to reflect a traditional garden pavilion. Rather than using a prefabricated metal shed, ensure new buildings use a design, scale and materials sympathetic to the era of the house. Integrate new structures by having vines scrambling over them and by establishing a shrubbery setting.

An arbour or arch can be a delightful garden accent. Vines with scented flowers or climbing roses can shade a seat, define the passage between two garden areas, or make a pathway a garden's special feature (Images 6a, 6b and 6c).

gardens vine styles 

Aviaries, pigeon lofts and dovecotes were popular in early 20th century gardens but fell out of favour later. For an early 20th century house, you could include an aviary-like structure with an alternative use as a seating arbour or vine-covered structure.

The garage was commonly in the backyard until the 1970s. It was usually a modest timber structure and may have contained a small home workshop. These old garages can still be seen in some Toowoomba Region backyards and are a great historical garden asset.

Kitchen garden

Herb and vegetable gardens are increasingly desired in the rear garden, just as they were from settlement times to the mid-20th century. A historically appropriate kitchen garden should have a simple rectangular form. It could include climbing frames and fruit trees. Place your compost bins in a convenient but inconspicuous location.

Chook yard and roost

Chooks were frequently kept in the rear yard of early houses. In larger properties, a fenced area was often located at the rear of the yard, using two of the boundary fences. A timber-framed, mesh-enclosed chook yard was often added as a lean-to on the storage shed, the tank stand or garage. A simple structure and rectangular layout is the most appropriate for a character garden.

Clotheslines

The earlier clothesline system of long lines between timber poles (Images 7a and 7b) is visually simple and fits into a renovated garden, reflecting traditional style. A rotary clothesline, also known as a Hills hoist (Image 7c) is practical and also traditional. These were first introduced in the 1920s but became popular after World War II. Try to retain or restore the old fixture, or install a new one. 

gardens timber pole clothes lines 

Water tanks

Through the first half of the 20th century, water tanks were fairly common at the rear or side of houses in towns. Historical documents or photos of your house, or even remnants of the tank stand, can indicate the original location. In regional towns, such as Pittsworth, the old tanks are sometimes still present. Sheds, rooms and laundries were sometimes built in under the tank stand. Retain these historical features.

If the original location of the tank stand is no longer suitable, place an above-ground tank to one side of the property so views and northern/winter aspects are not blocked. A traditional tank in lined corrugated steel or stainless steel will suit a character house and won't need to be screened from the garden or house. Consider adding a vine-covered trellis or hedge planting to screen modern plastic or concrete tanks.

Tank water will help you establish new plants, a kitchen garden and fruit trees. A sizeable tank allows for some deep watering and watering the lawn. Tank water can also be used to flush toilets and for washing machines. Find out more about installing rainwater tanks.

Windmills and bores

Bores are now rare in Toowoomba but are still found in regional towns, such as Pittsworth, for garden watering. Sometimes they have a windmill. This is a distinct feature and you should try to retain it, even if it's no longer used.

Plant substitutions in heritage gardens

Water-saving adaptations

Your new or renovated garden should keep the scale and proportion of lawns and garden beds, and where possible, traditional plant forms, foliage textures and contrasts. However, it should also use less water than in the past. Soil preparation, mulching and maintenance practices are key to saving water. The Queensland Government has tips on how to be a waterwise gardener.

Drought-tolerant plant substitutions are also critical. Consider reducing the area of water-loving lawns, and accept that lawns may brown off in dry periods. Substitutes include a drought-hardy grass species, carpeting ground covers and succulents, or gravel areas or pathways (Image 8).

gardens lawn substitute 

Local nurseries can suggest many suitable substitutes. Substitutes for some traditional, water-loving shrubs include:

  • Dianella (flax lily) or dwarf lomandra (dwarf ornamental native grass) varieties
  • Callistemon (bottlebrush)
  • Grevillea (spider flower and toothbrush flower)
  • Leptospermum (tea tree) and Melaleuca (tea tree, honey myrtle and paperbark) compact shrub varieties
  • Westringia varieties instead of Lavandula (lavender) or Rosemarinus officinalis (rosemary)
  • Dwarf grafted Eucalyptus (dwarf grafted gum tree), which is available as a feature standard.

However, many Australian native plants are not wholly appropriate for a reconstruction of a historical house garden.

Potentially invasive and poisonous plants

Some traditional garden plants are no longer acceptable due to being invasive, weedy or poisonous. You may need to use substitutes for your character garden reconstruction. For example, substitute Pittosporum (cheesewood) or Abelia (honeysuckle) species for Ligustrum (privet) species, which is an environmental weed in Queensland.

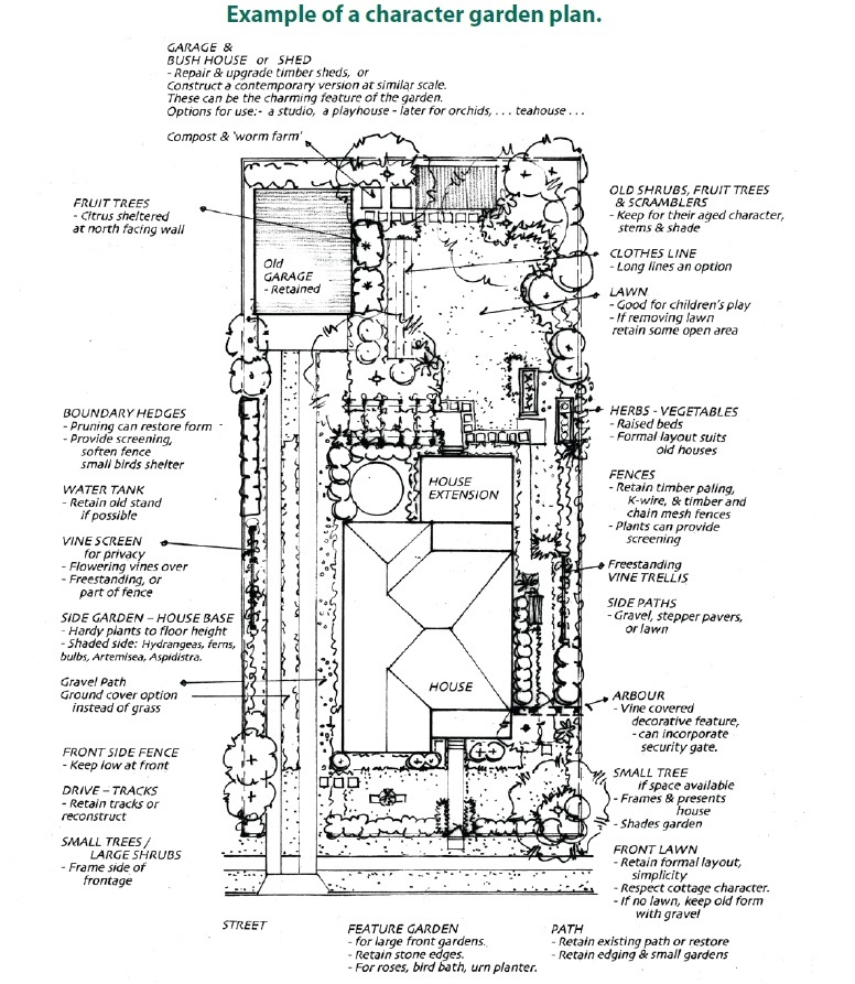
Character garden plan

The image below shows an example of a character garden plan surrounding a house with a rear extension. The backyard is at the top of the plan and the front yard at the bottom. The image outlines tasks and notes related to each area (clockwise from the top of the plan).

Garage and bush house or shed: Repair and upgrade timber sheds or construct a contemporary version at a similar scale. These can be the charming feature of the garden. Options for use include a studio, a playhouse  later for orchids, a teahouse. Place for compost and worm farm.

Old shrubs, fruit trees and scramblers: Keep for their aged character, stems and shade.

Clothesline: Long lines are an option.

Lawn: Good for children's play. If removing lawn, retain some open area.

Herbs and vegetables: Raised beds. A formal layout suits old houses.

Fences: Retain timber paling, K-wire and timber and chain mesh fences. Plants can provide screening.

Freestanding vine trellis: For flowering or fruiting vines.

Side paths: Gravel, stepper pavers or lawn.

Arbour: Vine-covered decorative feature that can incorporate security gate.

Small tree in front gardenIf space available. Frames and presents the house and shades the garden.

Front lawnRetain formal layout, simplicity. Respect the cottage character. If no lawn, keep the old form with gravel.

Front path: Retain existing path or restore path. Retain edging and small gardens.

Feature garden: For large front gardens. Retain stone edges. Use roses, bird bath, urn planter.

Small trees/large shrubs: Frame side of frontage

Drive/tracks: Retain tracks or reconstruct.

Front side fence: Keep low at front

Side garden - house base: Hardy plants to floor height. On shaded side use hydrangeas, ferns, bulbs, artemisia, aspidistra.

Vine screen: For privacy, can be freestanding or use part of fence. Flowering vines.

Water tank: Retain old tank stand if possible.

Boundary hedges: Pruning can restore form. Provide screening, soften fence, provide shelter for small birds.

Fruit trees: Citrus sheltered at north-facing wall.

gardens example character garden plan 

Further reading

  • Broderick, Beris and Russell, Valerie, Cottages: A History of Cottage Life in Toowoomba, 1997.
  • Brouwer, Catherine, Landscape Architects Draft 5 Toowoomba and Region Gardens Heritage Advisory Note, 23/8/2010.
  • Gardner, Patricia, Toowoomba Plants: Natives of the Region suitable for Gardens Vol 1: Trees and Shrubs, 2005.
  • Toowoomba Regional Council, Planting Guide for Water Wise Gardeners, 4/2007 Acknowledgement